To realize a spacious, modern villa design that harmonizes contemporary planning with traditional, context-appropriate materials. The design emphasizes natural light penetration, seamless indoor-outdoor transitions, and robust, low-maintenance construction details. A key aspect of the vision is the strategic use of exposed laterite cladding as a signature architectural element, grounding the structure in its regional context while maintaining a clean, sophisticated aesthetic.
Design Approach & Aesthetics:
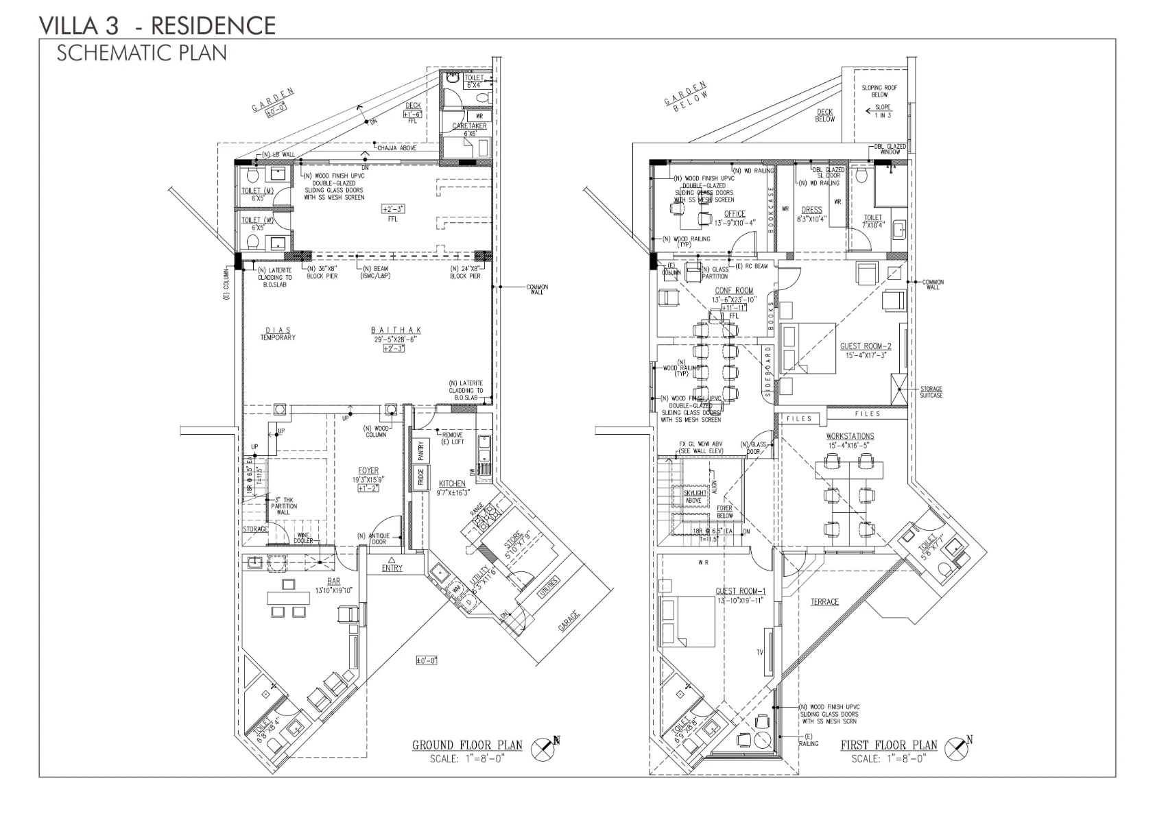
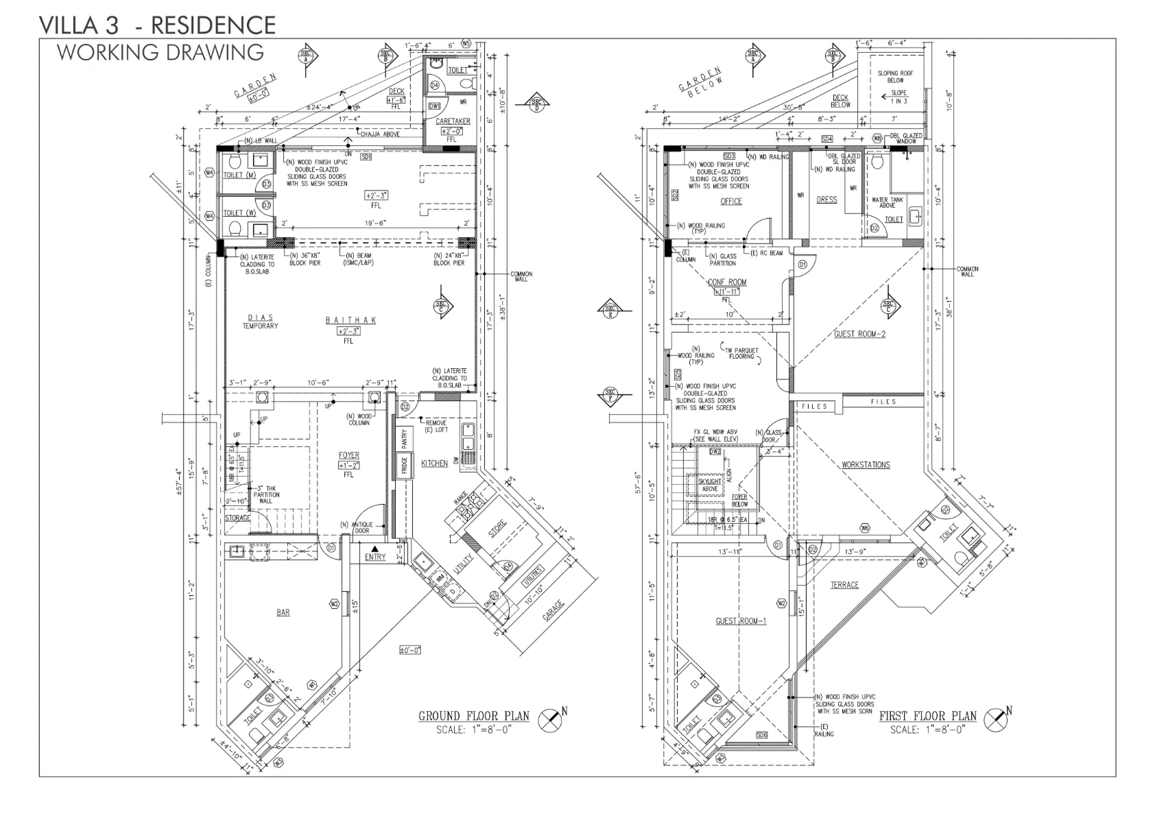
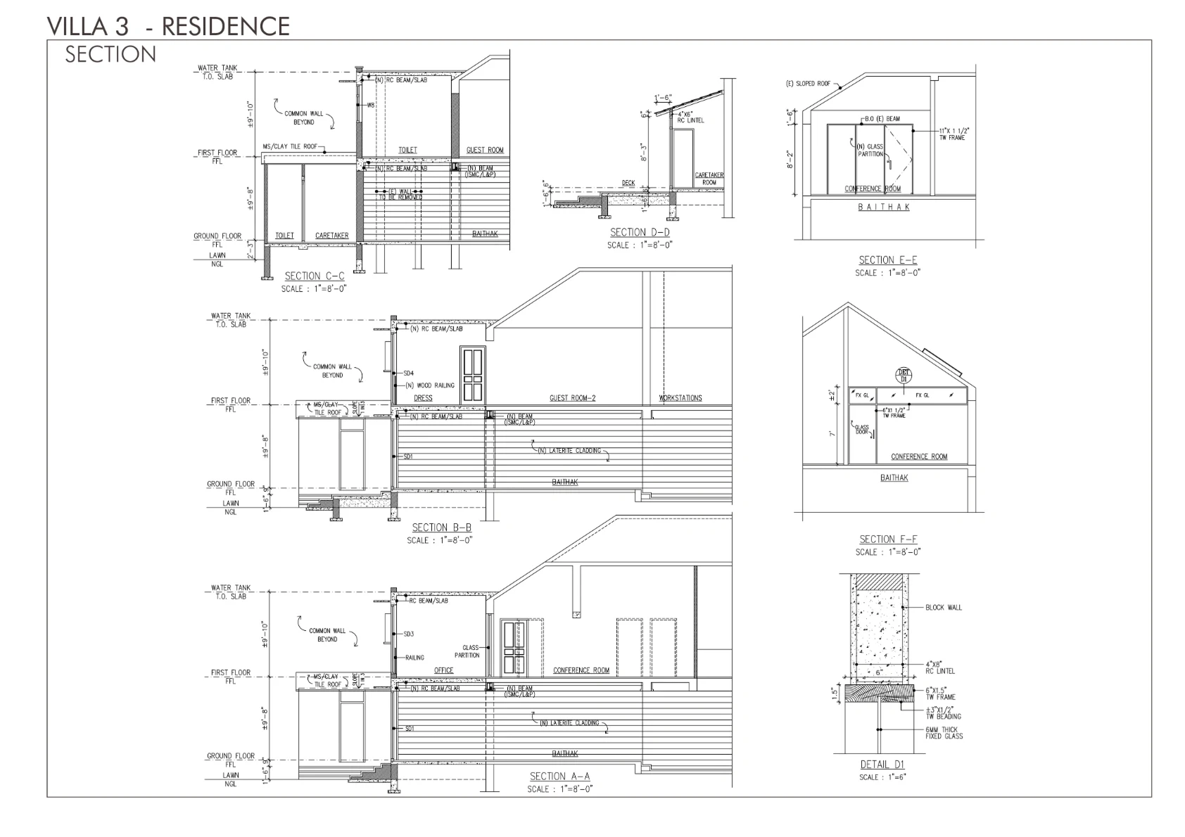
Aesthetic Harmony: The design employs a striking juxtaposition of raw, natural materials (laterite stone) with modern industrial components (M.S. beams, UPVC double-glazed windows, glass railings). This creates a timeless and durable facade.
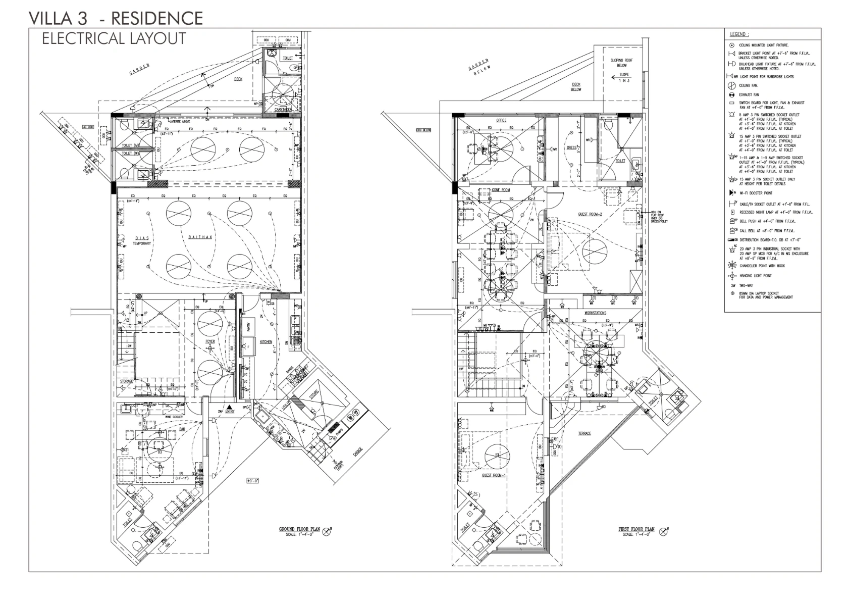
Daylighting & Ventilation: Extensive use of wood-finish UPVC double-glazed sliding glass doors and windows (with SS mesh screens) maximizes natural light and cross-ventilation, essential for a warm climate. Skylights are incorporated to bring light into core circulation areas.
Architectural Detail: The project includes meticulous detailing of junctions, such as the use of ISMC 250 beams for structural support integrated with cladding. The staircase design features a blend of existing wood treads, MS stringers, and wood railings.
Outcome:
The resulting residence is a structurally sound, highly functional home that successfully translates a contemporary design brief into a detailed, buildable project rooted in aesthetic quality and material integrity.












